Cedarwood Guest Bathroom
Size: 76 sq-ft Status: complete
Scope: interior renovation, project management, and construction administration
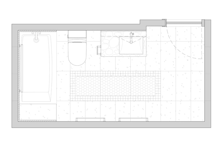
new floor plan


Design Development






The extended back wall not only establishes a visual hierarchy but also doubles up as a practical storage area. With the built-in bathtub, the tiles seamlessly stretch from the floor up to the bathtub wall to the back wall, generating a smooth and uninterrupted flow that expands the space.
Due to budget and time constraints, I skipped adding an external wall and built-in bathtub. Instead, I used two contrasting wall tiles on the end wall for a striking effect. Placing simple tiles along the sloping roof's side and more decorative ones on the full-height side created a vibrant shower corner, balancing out any visual unevenness from the sloped roof.
I've extended the design from the back wall to the floor, using the same type of tiles. Aligning both floor and wall tiles with the space lines has created a well-balanced and harmonious look throughout the entire space.


section
The back wall is covered in carefully chosen wall tiles that create the illusion of added height. Using two contrasting tile styles with accurate measurements and execution, I effectively defined the sloping ceiling, eliminating any visual imbalance it may have caused by the original space. This design approach seamlessly merges with the floor tile pattern, ensuring a harmonious and cohesive look throughout the space.







