Cedarwood Master Bathroom


Size: 108 sq-ft Status: complete
Scope: interior renovation, project management, and construction administration
Design Development
Option A


section
original floor plan








Option B




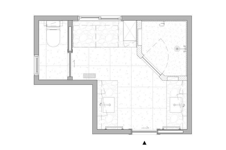
Option C(final option)
floor plan
perspective
perspective
perspective
floor plan
floor plan
The design of this master bathroom reflects the contrasting preferences of the homeowners. The male owner favors a simple, stable design, while the female owner enjoys bold patterns and golden accents. I used relaxing wood textures and earth tones to balance these tastes for the overall space, incorporating golden elements in the backsplash, hardware, and sconces. Bold tiles and rich wallpapers were chosen for the shower room and toilet to cater to their individual personalities.



























